| 堀口捨己氏の著書「利休の座敷」には表千家が所蔵する小庵筆「座敷之本」の二畳座敷の寸法が抜書きされている。文中には著者による注釈も付くが実際に作図してみると不具合な箇所や理解し難い部分も現れるため、多くはないが独自の解釈も行っている。しかし、これは著者に異を唱えるものではなく、あくまでも私独自の解釈であり、このような解釈も出来るのではなかろうか?と受け取っていただければ幸いである。 |
| 小庵の筆とされているので「利休二畳」を代表する座敷と思えるが、炉の位置が少々曖昧で角炉に思えるのだが炉の上には一重の棚が設置されているようで、もしかすると、この席は向切であったのではないかとも思えてならない。 |
二畳座敷 平面図

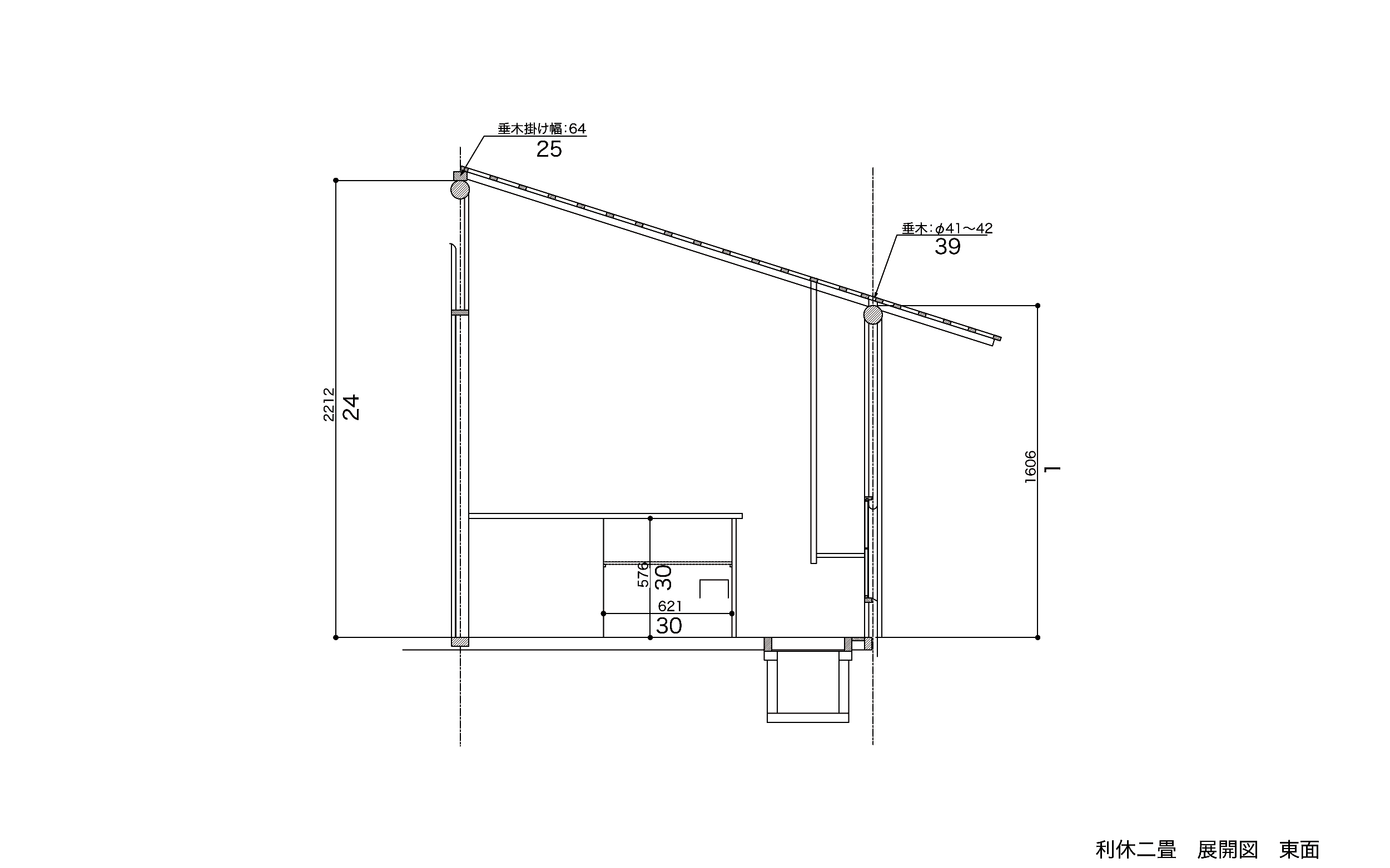
展開図 東面

「二畳敷之本」
| 「利休の茶室」解釈 |
| 「茶室LAB」解釈 |
| 一 のき(軒)のたかさ たたミよりけた(桁)のうへまて五尺三寸 |
| 1 軒の高さは畳より桁の上まで 5尺3寸(1606㎜) |
| 一、石よりしきい(敷居)のたかさ 一尺五寸 |
| 2 石より敷居の高さ 1尺5寸(455㎜) |
| 一、くゝり(潜)のたか(高)さ 二尺二寸五分 |
| 3 躙口の高さ 2尺2寸5分(682㎜) |
| 一、同はゝ(幅) 一尺九寸五分 |
| 4 躙口の幅 1尺9寸5分(591㎜) |
| 一、同しきい(敷居)のはゝ(幅) 二寸 |
| 5 躙口の敷居の幅 2寸(61㎜) |
| 一、同ふろさき(風呂先)のまと(窓)ふろ(風呂)の方からこわき(小脇) 一尺五分 |
| 6 風炉先の窓 風炉の方から小脇 1尺5分(319㎜) |
| 一、同しきい(敷居)のたか(高)さ たゝミ(畳)より 六寸三分うわは(上端) |
| 7 同敷居の高さは畳より敷居上端で6寸3分(191㎜) |
| 一、同しきいのあつ(厚)さ 七分 |
| 8 同敷居の厚さは7分(21㎜) |
| 一、同しやし(障子)のはゝ(幅) 一尺二寸七分 |
| 9 同障子の幅は1尺2寸7分(385㎜) |
| 一、同立 一尺五寸七分也 |
| 10 同障子の高さ1尺5寸7分(473㎜) |
| 一、したち(下地)まと(窓)のまん中に、まわり(廻)四寸のまはし(間柱)らあり |
| 11 下地窓の真ん中に廻4寸(直径38㎜)の間柱あり |
| 一、同くゝり(潜)の上のまと(窓)たか(高)さ 二尺四寸 |
| 12 同躙口上の窓の高さは2尺4寸(727㎜) |
| 一、同はゝ クミコノアツサ四分ヲモテ(表) 二分半フクミ上ハ四分半下四分 一尺九寸三分 |
| 13 同障子の幅は1尺9寸3分(585㎜) 組子の厚さは4分(12㎜)で上框の戸首2分半(7.6㎜)を含み4分半(13.6㎜)下框は4分(12㎜) ※クミコノアツサ四分ヲモテの「ヲモテ」は「表」と解釈すると「厚さ4分が表」となる、しかし(41)では「表」は「おもて」と記載されており、ここでは「組子の厚さは4分ある」と解釈している。 |
展開図 南面

| 一、同しやし(障子) くミこ(組子)かす(数)たつ(立) 二本 一 よこ五本 |
| 14 同障子組子の数は縦2本、横5本 |
| 一、まと(窓)のこわき(小脇) ふろさき(風呂先)から二尺おいてくゝり(潜)の方へまと(窓)あり |
| 15 窓は風炉先から2尺(606㎜)の小脇をおいて躙口の方へ窓あり |
| 一、同まはしら(間柱) くゝり(潜)の方 ぬりとめ(塗留)より六寸おきてあり ふと(太)さまわり(廻) 三寸 |
| 16 間柱は躙口の方へ塗留より6寸(182㎜)おきてあり 太さは廻3寸(直径30mm) |
| 一、同大べら(平)のまと(窓)くゝり(潜)の方より一尺四寸小わき(脇)あり |
| 17 同大べらの窓は躙口の方より1尺4寸(424㎜)の小脇あり(最も大きな窓は躙口から424㎜の壁を設けている) ※「大べら」の解釈が不明である。本書にて堀口氏は「大平」と書いてあるのだが現代で「大平」といえば床間の奥の壁であり、この壁に窓を開けることはないと思われる。古語辞典によると「大べら」とは「人目を気にせずにするさま」とあり内部が最もよく見える窓として「席で最も大きな窓」とした。さらに(18・19)の文章から開口の位置が躙口と床間の間にあり正面を南とすれば東か西に位置する窓である。また道庫の上にこの窓があるとするなら多分、文章のどこかに「とうこうの上にまとあり」と表現されるであろうことから今回は西の壁面に開けた大きな窓と解釈している。 |
| 一、同間はしら(柱) くゝり(潜)の方ぬりとめ(塗留)より六寸五分おいてあり まわり(廻)四寸の竹也 |
| 18 同間柱は躙口の方の塗留より6寸5分(197㎜)おいてあり廻り4寸(直径38mm)の竹 |
| 一、とこの方ぬりとめ(塗留)より五寸おきてまわり(廻) 一寸五分の竹 |
| 19 床の方の塗留より5寸(152㎜)おいて廻1寸5分(直径14㎜)の竹 |
| 一、同しやうし(障子)のたか(高)さ 二寸五分七分 |
| 20 同障子の高さ 2尺5寸7分(779㎜) |
| 一、畳よりしきい(敷居)の高サ 二尺二寸 |
| 21 畳より敷居の高さ 2尺2寸(667㎜) |
| 一、同はゝ 二尺三寸 |
| 22 障子の幅は2尺3寸(697㎜) |
| 一、同くミこ(組子)たつ(立)二本 一 同くミこ(組子)よこ(横) 五本 |
| 23 同障子の組子の数 縦2本 横5本 |
| 一、むね(棟)のたかさ たゝミ(畳)より 七尺三寸 |
| 24 棟の高さ 畳より7尺3寸(2212㎜) |
| 一、上のたるきかけ(棰掛)のはゝ(幅) 二寸一分 |
| 25 棟木上の垂木掛けの幅 2寸1分(64㎜) |
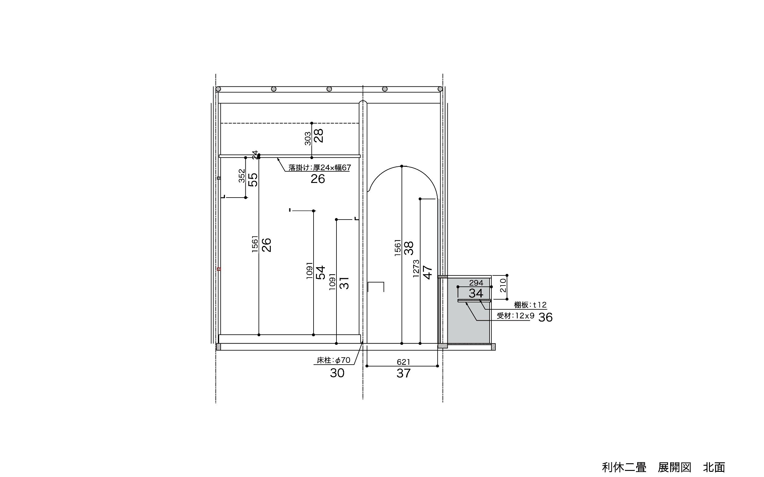
| 一、とこ(床)のおとしかけ(落掛)たか(高)さ 五尺一寸五分 一 同おとしかけあつ(厚)さ 八分 一 同はゝ 二寸二分 |
| 26 床の落掛高さ 5尺1寸5分(1561㎜) 厚さ8分(24㎜) 幅2寸2分(67㎜) |
| 一、とこ(床)のふか(深)さ |
| 27 床の深さ 2尺2寸(667㎜) |
展開図 西面

| 一、ぬり天しよう(井)のたか(高)さ おとしかけ(落掛)したは(下端)よりたかさ 一尺のほら(洞) |
| 28 塗天井の高さ 落掛下端よりの高さ1尺(303㎜)の洞 |
| 一、とこ(床)のかまち(框)はゝ(幅) 二寸三分 同あつ(厚)さ 一寸四分 |
| 29 床框の幅(高さ) 2寸5分(76㎜) 厚さ(奥行き) 1寸4分(42㎜) |
| 一、とこの中はしら(柱)ふと(太)さ 二寸三分 |
| 30 床の中柱(床柱)の太さ 2寸3分(70㎜) |
| 一、同おりくき(折釘)のたか(高)さたゝミ(畳)より 三尺六寸 |
| 31 中柱(床柱)には折釘を畳より3尺6寸(1091㎜)の高さに打つ |
| 一、とうこう(堂庫)のたか(高)さ 一尺九寸 同はゝ(幅) 二尺五分 |
| 32 道庫の高さ 1尺9寸(576㎜) 幅 2尺5分(621㎜) |
| 一、同ふか(深)さたゝミ(畳)よりさき(先)のいた(板)まで 一尺五寸五分 |
| 33 同深さは畳より先の板まで 1尺5寸5分(470㎜) ※この文より道庫の床は板であろうと解釈している。 |
| 一、同たな(棚)のはゝ(幅) 九寸七分 |
| 34 道庫内部の棚の幅 9寸7分(294㎜) |
| 一、同たな(棚)のたか(高)さ 天しやう(井)からあい(間) 七寸 |
| 35 棚の高さは天井から 7寸(210㎜)下に設ける |
| 一、同たな(棚)のあつ(厚)さ 四分 一 同もたせはゝ(幅) 四分 一 同あつ(厚)さ 三分 |
| 36 同棚の厚さ 4分(12㎜) 受け木の幅 4分(12㎜) 同厚さ 3分(9㎜) |
展開図 北面

| 一、同かつてくち(勝手口)はゝ(幅) 二尺五寸 |
| 37 勝手口(茶道口)の幅 2尺5分(621㎜) この寸法であれば壁には小脇が付かず柱間が茶道口の幅となる。 |
| 一、同たか(高)さ 五尺一寸五分 |
| 38 同高さ 5尺1寸5分(1561㎜) ※おそらく火灯口ではないかとも思われるが高さのみの表示しかなく、また(35)より柱間全てが開口となるため鴨居を入れた茶道口である可能性もあるのだが(47)にて4尺2寸(1273㎜)までの高さまで紙を張ると記載されており、壁を塗り廻す火灯口とし茶道口右側には特に柱は必要としないので柱を無くし壁廻しとした。 |
| 一、たるき(棰)のふと(太)さ のき(軒)のけた(桁)のうえ(上)にて 四寸三分四分也? |
| 39 垂木の太さは桁上で直径 42~43㎜ ※「太さ」といえば現代では、ほぼ直径と捉えるが、当時は円周で表現することも多かったようで(16)や(19)では「廻」の文字が書き加えられており、この「たるきのふとさ・・・四寸三分四分也」も直径として理解すると不自然に感じられ円周と解釈することが妥当と思われる。また「四寸三分四分」と表記しているのは寸法を確定できる製材ではなく自然材の丸太もしくは竹材で「直径41㎜~42㎜」であろう。ちなみに、ちなみに「この二てう座敷」に、最も近いであろうと思われる反古張の席は竹を使用している。 |
| 一、こまい(木舞) 十四とほり(?) うち(内)のふん(分) そとに五とほり |
| 40 木舞 内には14本 外に5本 ※「とほり」を「通り」として室内には14本見え屋外には5本の木舞があるとした。 |
| 一、上につきあけ(突上)一つあり ふちのはゝ(幅)六分 同あつさ 五分半 |
| 41 上に突上げ窓1つあり 縁の幅 6分(18㎜) 同厚さ 5分半(17㎜) |
下地窓 南面

| 一、上にひとこまあり |
| 42 上にひとこまあり 「ひとこま」が不明である。突上げ窓の上部に木舞一コマ分を開けて設置するとも解釈できるのだが、仮にそうであれば「同上にひとこまあり」と書いたであろう。「上」とは天井であることは間違いなく「天井に一小間あり」と平天井部分があるとも解釈できるのだが、これも「上にひらぶぶんあり」と書いたであろうことから「天井はひとこまのみ」と全体に片流れ一面の天井であると理解しても良いのだろうか。 |
| 一、ひかし(東)のしたちまと(下地窓) よし(葦)よこ(横)十五 たつ(立)十四 此うちにたつよこ(立横)竹まし(混)へ 此うちに しきい(敷居)より八寸五分おき、かいずり(掻蔓)のほそきに(?)が竹あり、そのかいずりより上のかいつりまての間1尺、このまと(窓)の土のへり下に1寸2分 上になし |
| 43 東?の下地窓には葦を横に15本、縦に14本あり此の内に縦横に竹を増す。さらに敷居より8寸5分(258㎜)空け、かいずり(平竹)の細き真竹があり、そのかいずりより上の、かいつり(平竹)までの間1尺(303㎜)、この窓の土のへり下に1寸2分(36㎜)あるが上には無い。 ※冒頭の「ひかし」が問題である。躙口を南とすると道庫側が東となるが(17)より東側の窓とは理解し難く、ここでは安易に西との書き損じではないかと思うのだが「ひかしむしたじまと」とあれば「日傾く下地窓」とも解釈でき西側ではないかとも思われるのだが。 ※文中「かいずり・かいつり」という言葉が度々現れる、本書の中では「掻蔓」としているのだが理解し難く、下地窓の丸面部分を指す言葉に「貝」あるいは「蛤」と表現することから「かいずり」は「貝摺」であり下地窓の下端部分に入る下地材の名称であり「かいつり」は下地窓途中に入る下地材、あるいは縦に入れる下地材の名称と理解して間違いないように思われ「かいずり」「かいつり」は現代の建築用語集では「えつり竹」あるいは「竹平割」に当たるのではないだろうか。 |
| 一、きこ(?)のまと(窓)つち(土)のへり下に 一寸六分 たてつめに 一寸七分、へりのふちのほかにしたぢ(下地)のかす(数)十四本 たつ 十一本 よこのかいつり(蔓)の竹 しきい(敷居)より 九寸六分 又このかいつり(掻蔓)上まで九寸五分おきあり |
| 44 きこの窓土のへり下に 1寸6分(48㎜) たてつめに 1寸7分(52㎜)、へりのふちのほかに下地の数14本 立つ 11本 横のかいつりの竹 敷居より 9寸6分(291㎜) 又このかいつり上まで9寸5分(288㎜)ごとにある。 ※「きこ」の意味が不明だが3箇所ある窓のうち(41)は西側の窓(43)が小窓で多分風炉先窓で間違いないので、この窓は(12)の躙口上の窓を指しているだろう。 |
| 一、小まと(窓)の上に土のヘリ 一寸五分 たてつめ又下につち(土)のへりなし、五寸三分おきかいつる(掻蔓)竹あり。したち(下地)のかす よこ(横)九ツ たつ(立)八ツ、これもかいつるかけての事也 横一尺二寸九分 立一尺六寸 クミコ(組子)立一本 横三本 アツサ同前 |
| 45 小窓の上に土のヘリ 1寸5分(45㎜) たてつめ又下に土壁の縁なし、5寸3分(161㎜)おきにかいつる竹あり。下地の数 横9つ 立8つ、これもかいつるかけての事也 横1尺2寸9分(391㎜) 立1尺6寸(485㎜) 組子立1本 横3本 厚さ同前 ※「小まと」は風炉先窓のことと考えているが、どうも寸法が合わない部分が出てくる。風炉先窓の寸法は(9)及び(10)より横385㎜高さ473㎜なのだが、ここでは横391㎜高さ485㎜と横では6㎜大きく高さでは12㎜大きく、さらに再度、障子の組子本数が書かれており風炉先窓の他に小窓があるのではないだろうかとも思われる。 |
| 一、ちやのゆのすミ こまと(小窓)のかもい(鴨居)下よりぢしき(地敷)まて(迄)ぬりまわし(塗廻) かもい(鴨居)よりけた(桁)まてまる(??)木ミゆる也 |
| 46 風炉先の壁隅は小窓の鴨居下より地敷居まで塗り廻し 鴨居より桁まで柱の面を見せる |
| 一、ぬりまわし(塗廻)のくち(口)へりは(貼)る事 たつ四尺二寸 へい(??)のふと(太)さまるミ(丸味)まて一寸三分 このほかはりつけ(貼付)ハ とうこう(堂庫)のしやうじ(障子)のうち ひかし(東)のまとの斗也 |
| 47 壁の塗廻しの端には紙を張る事 立つ4尺2寸(1273㎜) 端の太さ丸みまで1寸3分(39㎜) この他 張付けは道庫の障子の内側と(西の)窓の4方也とある。ただし腰壁に紙を張る記述は、ここでは見当たらない。 |
下地窓 西面

| 一、かつて(勝手)のたな(棚)のかまち(框)のはゝ 八分 一 同あつさ六分 |
| 48 勝手の棚の框の幅 8分(24㎜) 同厚さ 6分(18㎜) |
| 一、同たな(棚)の間 一尺一寸三分 |
| 49 同棚の幅 1尺1寸3分(342㎜) ※二重棚であり上下の棚の間隔を表現したとも解釈できるのだが、実際に図面に落とし込むと少々違和感が生まれるため、この「間」は「幅」と考え、この棚は1重の棚と捉えた方が良いのではないだろうか。また勝手に棚があるとすれば風炉は「向切り」であったとも考えられる。 |
| 一、同上の□□の間 一尺 |
| 50 同上の□□(鴨居)の間 1尺(303㎜) 棚上部で基準となるものとすれば鴨居か天井だろう、その間が一尺とすれば多分鴨居が最も適切であろう。 |
| 一、同つりき(釣木)のふと(太)さおもて 九分 一 同つりき(釣木)のあつさ 六分 |
| 51 同釣木の厚さ 9分(27㎜) 厚さ 6分(18㎜) |
| 一、同物をかくる竹くき(釘)の間 五寸五分つゝをきてうつ(打) その竹くき(釘)のなか(長)さ 一寸二分つゝ |
| 52 同物を掛ける竹釘の間 5寸5分(167㎜)づつおいて打つ その竹釘の長さは各 1寸2分(36㎜) |
| 一、とこ(床)のま(真)中にうちへミ(見)ゆるやうに杉けた(桁)一てう(丁)あり |
| 53 床間の中に見ゆるように杉桁一丁あり ※ この文章より床間外壁側に桁が見えると理解すると、棟は床柱の位置として主屋根と同じ勾配として棟と同寸の垂木掛けを乗せ製図すると丁度、桁の一部が壁と天井の角に桁が表れることになる。また本書のように真中では桁の位置としてはふさわしくなく「とこのま中」は「床間の中には」との意図した。 |
| 一、竹の花入か(掛)くる釘 地しき(敷)より 三尺六寸二打 |
| 54 竹の花入を掛ける釘 地敷居より 3尺6寸(1091㎜)に打つ |
| 一、床脇ノ柱ニおり(折)釘おとしかけ(落掛)より 一尺一寸六分ニ打也 |
| 55 1 床脇の柱に折釘、落掛より 1尺1寸6分(352㎜)に打つ也 |
以上二畳敷也」
引用した「利休の茶室」に掲載される「二てう敷之本」はこちらから。
