「茶室の歴史は四畳半から始まった」といわれ四畳半を基準に「広間」と「小間」に分けられる。広間では多数の客を招き、いわば様式化された茶の湯といえる。一方で小間は少数の客を相手に亭主の個性や独創性を表現できる席と捉えて良いだろう。
茶室の起源とされる「同仁斎」は銀閣寺の名で知られる慈照寺東求堂(創建1485年)にある書院造りの一室で、いわば財力と権力のある人物が所有する建築物であり庶民とは遠い存在であった。しかし、この四畳半の書院を基本として武野紹鴎(1502~1555)は茶の湯専用の座敷として四畳半を完成し、利休(1522~1591)を始めとして京堺の錚々たる茶人は、この四畳半を写したと伝わる。しかし紹鴎は「この一間床付きの四畳半は唐物持ちの席」と説き唐物を持たない人には無用であるとした一方で紹鴎は師と仰ぐ村田珠光(1423~1502)が始めた「侘」の理想をも忘れず弟子である利休にも継承された。
「侘び茶」が確立される利休の時代、茶の湯は「数寄道」ともいわれ「皆自己の作意機転にてならいのなき」を極意とし、まさに小間の席は個性や創意が重んじられ、この茶風は間取りにも現れ茶匠が創造した名席には必ず、その作者の思想や信念、世界観が表現される。それは完成形を目指すのではなく新たな試みを取り入れ、継続する茶室の創造に重きを置いた結果と言えよう。
利休は茶室に使用する素材を見直し工夫を凝らすことにより茶の湯を世間に広めようと試みたほかにも、もしかすると利休は変化せず形式的な物事は衰退を招くことを知っていたのではないだろうか、そこで四畳半に普遍的な茶の湯を託し、小間には独創性と変化を求め世間に普及する茶の湯の将来を期待したのではなかろうか。
ここでは茶匠の創意工夫を凝らし独創的な小間に重きを置き、四畳半を含む茶室の間取りを取り上げる。
茶室間取り集
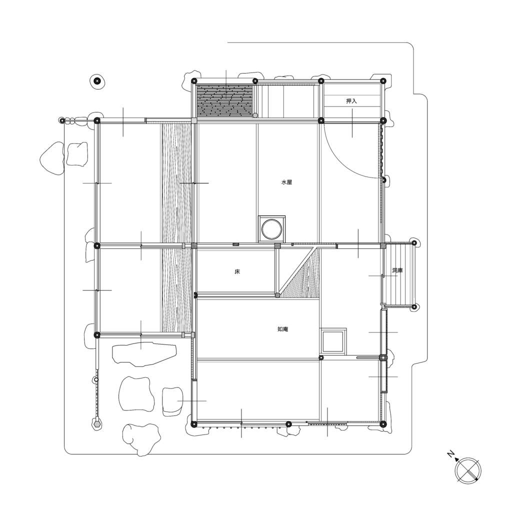
| 如庵|joan(国宝) |
| 所在:愛知県犬山市大字犬山字御門先1番地「有楽苑」 年代:元和4年頃(1618) 様式:草庵式 好み:織田有楽(1547~1621) |

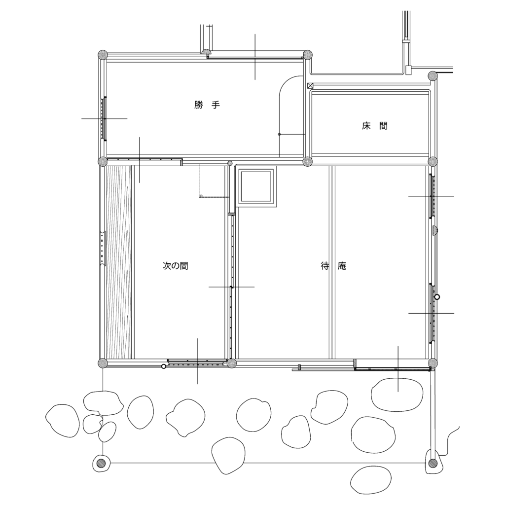
| 待庵|taian(国宝) |
| 所在:京都府乙訓郡大山崎町字大山崎「妙喜庵」 年代:天正10年頃(1582) 様式:草庵式 好み:千利休(1522〜1591) |
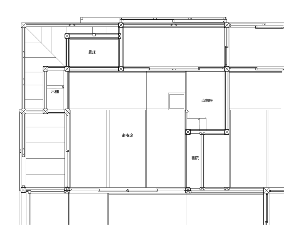
| 密庵席|mittann_no_seki(国宝) |
| 所在:京都府京都市北区紫野大徳寺町「龍光院」 年代:寛永18年以前(〜1641) 様式:書院式 好み:小堀遠州(1579〜1647) |
| 庭玉軒|teigyoku ken(重要文化財) |
| 所 在:京都府京都市北区紫野大徳寺町 年 代:寛永年中(1624〜1644) 様 式:草庵式 好 み:金森宗和(1584〜1657) |
| 又隠|yuin(重要文化財) |
| 所在:京都市上京区小川通寺ノ内上る裏千家邸内 年代:寛政元年(1789)再興 様式:草庵式 好み:千宗旦(1578~1659) |
| 山雲床|sanunjyo(重要文化財) |
| 所在:京都市北区柴野大徳寺・孤篷庵山内 年代:創建|寛永20年頃 再興|寛政12年 様式:書院式 好み:創建・小堀遠州(1579~1647) |

| 忘筌|bousen(重要文化財) |
| 所在:京都市北区柴野大徳寺・孤篷庵山内 時代:創建|慶長17年 移築|寛永20年 再興|寛政12年 様式:書院式 好み:小堀遠州(1579~1647) |

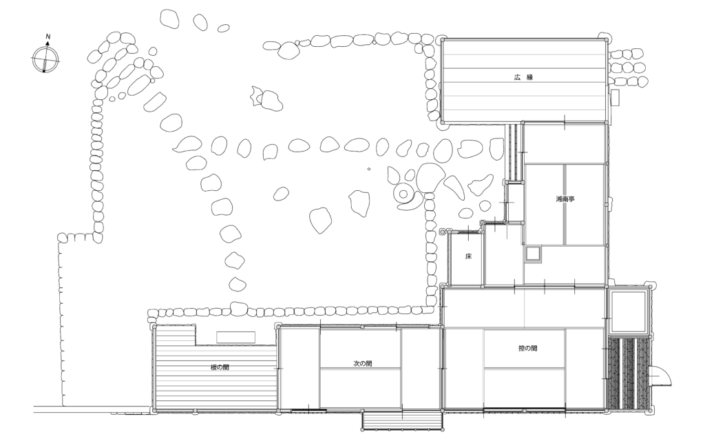
| 西方寺「湘南亭」|shounan_tei(重要文化財) |
| 所在:京都市右京区松尾神が谷町西方寺山内 年代:創建|桃山時代 様式:草庵式 好み:千少庵(伝)(1546~1614) |
| 黄梅院「昨夢軒」|sakumu_ken(重要文化財) |
| 所在:京都内市北区紫野大徳寺町83-1 年代:創建|永禄元年(1558)頃 様式:書院式 好み:武野紹鴎(伝)(1502〜1555) |
| 伏見稲荷大社「御茶屋」|ochaya(重要文化財) |
| 所在:京都市伏見区深草薮之内町68番地 年代:江戸時代初期(1615-1660) 様式:書院式 好み:御水尾天皇(1596〜1680) |
| 三渓園「春草廬」|shunsouro(重要文化財) |
| 所在:神奈川県横浜市中区本牧三之谷58−1「三渓園」内 年代:江戸時代初期(1615-1660) 様式:草庵式 好み:織田有楽(1547~1621)伝 |
| 高台寺「傘亭」「時雨亭」|kasatei_shiguretei(重要文化財) |
| 所在:京都市東山区高台寺下河原町526 年代:文禄4年|1595年頃? :移築/慶長年間(1596〜1615)伏見城から移築? 様式:茶亭式・茶屋式 好み:千利休?・豊臣秀吉?/土廊(土間廊下):小堀遠州? |
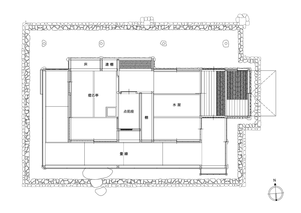
| 水無瀬神宮「燈芯亭」|toushin_tei(重要文化財) |
| 所在:大阪府三島郡島本町広瀬3丁目10−24 年代:寛永の頃(1624〜1644) 様式:草庵風書院 好み:御水尾天皇(伝)(1596〜1680) |

| 金地院「八窓席」|yatumado_no_seki(重要文化財) |
| 所在:京都市左京区南禅寺福地町金地院山内 年代:寛永6年(1628)頃 様式:草庵式 好み:小堀遠州(1579〜1647) |
| 札幌・中島公園「八窓庵」|hassou_an(重要文化財) |
| 所在:札幌市中央区中島公園1 日本庭園内 年代:寛永6年(1628)頃 様式:草庵式 好み:小堀遠州(1579〜1647)伝 |
| 聚光院 閑隠席|kanin_no_seki(重要文化財) |
| 所在:京都市北区紫野大徳寺町58 年代:寛保元年(1741年)頃 様式:草庵式 好み:如心斎(1705〜1751) |
| 聚光院 桝床席|masudoko_no_seki(重要文化財) |
| 所在:京都市北区紫野大徳寺町58 年代:文化7年(1810) 様式:草庵式 好み:了々斎(1775-1825) |
| 仁和寺「飛濤亭」|hitou_tei(重要文化財) |
| 所在:京都市右京区御室大内33 年代:江戸時代中期(1710〜1760)頃 様式:草庵式 好み:光格天皇(1771〜1840) |














