| 小庵と湘南亭 |
| 臨済宗の禅僧・作庭家・漢詩人・歌人であった夢窓国師(1275〜1351)が作庭した西方寺庭園内に建つ「湘南亭」と名付けられた庭間建築は古来、中央の中島(朝日島)に建っていたと推測されており現在地とは異なっていたことは明らかである。 西芳寺庭園南端の小高い現在地に建つ湘南亭は、慶長年間に千少庵の再興にかかり、この亭で小庵自身が暫く隠棲したと伝わる。この伝承は、小庵が湘南亭に似た深三畳台目や平三畳台目の席を造ってたことや、利休が大徳寺門前の屋敷に不審庵を建てたとき西芳寺の石畳を手本にして同庵の露地を作ったこと(江岑夏書)から、湘南亭の広縁の土天井は利休の好みであるという説(茶道筌蹄)ができ、それから湘南亭を少庵好みとする説に転化したものではあるまいかとの説もある。 しかし現在のところ少庵作であることを明確に示す史料、あるいは少庵が湘南亭で開催した茶会の茶会記も見当たらない。当時としても千利休の子であり千家二世の小庵が隠居し湘南亭で開催した茶会となれば1件や2件くらいは茶会記に記されても全く不思議ではない。 これは実際に湘南亭と少庵には繋がりがなかった。あるいは少庵は赦免されたといっても、まだまだ秀吉の監視下にあり小庵は茶会記など記録されることを拒み参加者も気を利かせ会記として残さなかったのかもしれない、また会記はあるが西方寺の幾多ある古文書の中に埋もれ、未だ発見されていないのかもしれない。 しかし少庵の作ではないとしても湘南亭は歴史的にも非常に優れた建築であることに間違いはない。 |
| 湘南亭が小庵の作であるとの言い伝えがある以上、小庵の生涯および湘南亭の歴史に触れておこう。 |
千少庵
| 千少庵は天文15年(1546年)に生まれ幼名を猪之助、通称には吉兵衛、四郎右衛門と呼ばれ、千家二代として宗淳、別号は当初、松庵と称したとの説もあるが小庵を用いた。 小庵は先天的に片足に障害を持っていたとされるが、茶の湯の世界では千利休と茶の湯における好みや風態において合致し利休も認める才覚の持ち主であったようで、今では草庵茶室の基本形態の四尺床を最初に試みたのは少庵であった。少庵は二畳半の席に4尺床を設け、この席を見た千利休は自身の四畳半室に備えていた5尺の床を4尺3寸に縮めたと伝わるほど、この4尺床は利休も高く評価し、後に利休自身の茶室にも多く採用している。 |
| 小庵の生涯と湘南亭の歴史 |
| 「*|小庵の生涯」「・|湘南亭の歴史」 |
| ・夢窓国師作庭時に創建 ・応仁の乱(1467〜1477)にて被災 本願寺八世蓮如 将軍家にて修復再興 ・天文三年(1534)7月兵火にて被災 藤原摂州 子建 再興 *天文15年(1546)|千少庵誕生 ・永禄11年(1568)水害 織田信長 再興 *天正6年(1578)1月1日|長男、宗旦誕生 *天正7年(1579)9月21日(小庵34歳)|利休堺屋敷へ訪問(茶道四祖傳書・松屋筆記) *天正8年(1580)|利休に先じ京都入り 柴野大徳寺門前に居を構える *天正10年正月26日朝(小庵37歳)|大徳寺門前小庵会、少庵最初と思われる茶会に津田宗及を招く(宗及日記) *天正13年(1585)頃|小庵が二条釜座(又は衣棚)あたりに居を移し二畳半四尺床の座敷を構える *天正13年(1585)頃|千利休は堺より小庵の屋敷であった大徳寺門前に居を移し四畳半座敷「不審庵」の額を掲げる(江岑夏書) *天正13年(1585)10月7日|秀吉、御所にて大茶会開催、利休勅号「利休居士」の号を受ける(江岑夏書) *天正15年(1587)|秀吉の聚楽第完成 *天正15年(1587)10月1日|秀吉、北野大茶会を開催 *同年|利休は聚楽第に土地を拝領し四畳半茶室、一畳半茶屋、上段付き書院(後の残月亭)を設ける。 *天正17年(1589)頃 長男宗旦(宗旦12歳)春屋和尚の膝下、大徳寺で暮らし始める。 *天正18年(1590)秀吉、小田原出陣、利休従軍同行 *天正19年(1591)二條屋敷水害、街の割替えにて少庵は千家現在地「小川頭本法寺前に替地を拝領して移住。 *天正19年(1591)2月28日 利休自刃(小庵45歳・宗旦14歳) *同年 小庵は會津若松の蒲生氏郷(36歳)に預かりの身となる。この時、蒲生氏郷が若松城内に茶室を依頼、小庵は三畳台目の茶室「麟閣」造営する。 *文禄元年?(1592)(と推測される)11月13日 秀吉、氏郷連名にて小庵の赦免状発行され楽家二代「常慶」少庵を迎えに旅立つ。 *文禄二年?(1593)春「麟閣」にて小庵、氏郷、常慶で茶会を開催。 *同年、小庵帰京する、秀吉より知行500石をあたえられ聚楽にあった利休の遺構一部を許され本法寺前の自宅に移築する。利休所持家財等も返還され千家の再興を成す。(小庵47歳 宗旦15歳) *文禄4年(1595)2月7日|蒲生氏郷、伏見蒲生屋敷にて病死。享年40 *小庵 現「残月亭」の原型となる上段付の色付九間之書院を造営 *文禄4年(1595)あるいは慶長3〜5年(1598〜1600)頃、小庵隠居(少庵49歳〜54歳 宗旦17歳〜22歳) *慶長13年2月25日松屋久重茶会記 小庵の平三畳台目席と深三畳台目茶室の図掲載 *慶長19年(1614)9月7日小庵没 享年68歳 ・寛永年間(1624年〜1644年) 洪水により庭園大破、湘南亭は現在地に移築されており難を逃れたと考えられる。 庭園は一応の再興を果たす ・元禄元年(1688)8月洪水「寺池庭とも流失」この後荒廃の一途 ・明治6年(1873)堂宇取畳解体 ・明治11年8月 再興 |
平面図

展開図
東 面

南 面

北 面

西 面

建築的考察
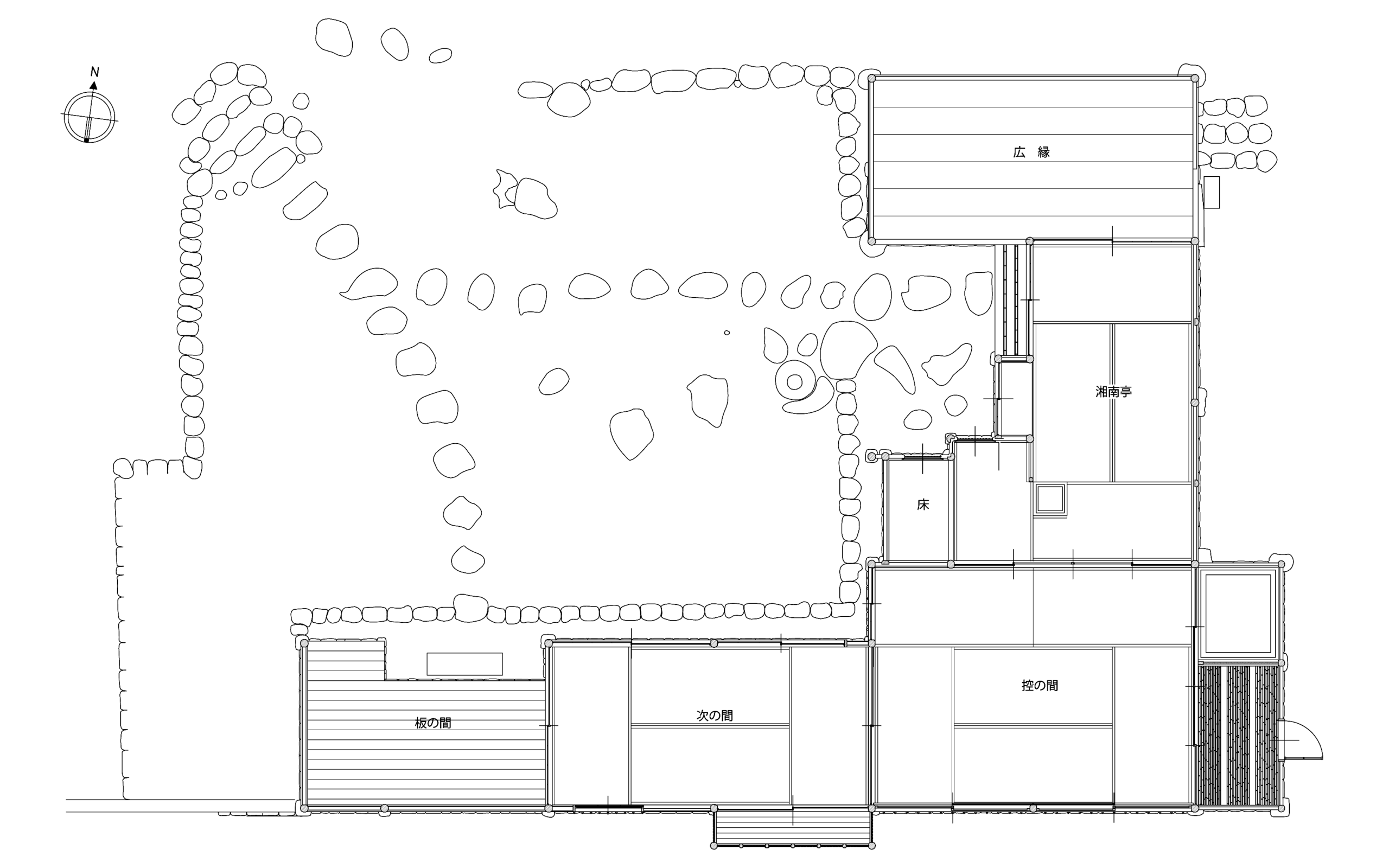
| 近世建築界では湘南亭は少庵が隠居するため再興したとされる、あるいは岩倉具視が隠棲したと伝わり、茶の湯と生活と両面の機能を備えていると評価されている。しかし私には全くこの建物に生活感を感じることが出来ない。 湘南亭の平面図には南側三室の室名は「次の間」「廊下の間」「待合」と表記される、この名称は文化庁「国指定文化財等データベース」にも「西方寺湘南亭・待合及廊下」として重要文化財に指定されており、いわゆる公式名称として捉えても良いだろう。 しかし、客をもてなすことを旨とする茶の湯の世界で裏方の空間、水屋へ客人を通すだろうか、また「廊下」として長四畳の部屋を計画するであろうか「待合」にしても一旦ここでお客を待たせる意味があろうか。 私が亭主なら見晴らしの良い広縁を待合に使用する、なにしろこの西方寺の林泉は禅庭・枯山水の完成者として世界史上最高の作庭家の一人である夢窓国師作の庭園である、季節や時間、天候により千変万化に変化する芸術的な自然の趣を庭園の中でも小高くなった地に、さらに展望台のように地面より1m20cm程高くなった広縁は当時としても素晴らしい異空間であったであろう。 この湘南亭は、その間取りから茶の湯を基とした社交場だ。もちろん湘南亭には出書院が備わり亭主が一人、徒然に思案を巡らすこともあったであろう、しかしそれを目的に計画されたものではない。あくまでも湘南亭は「懐石料理と茶の湯」で客をもてなす空間である。 もしかすと寛永年間から八坂神社の門前で栄えた祇園甲部を始めとする五花街の「仕出し料理」でもてなした茶屋文化あるいは、もともと来客時には本職の料理人が調理した仕出し料理にて客人をもてなしたとされる京都の「仕出し文化」は、この湘南亭から始まったのかもしれない。 ここで湘南亭の平面図を見てみよう、ただし今後の説明を解りやすくするため南側の室名は「次の間→控の間」「廊下の間→次の間」、「待合→板の間」としている。2間間口の建物と1間間口の建物をL字型に配置した基本計画である。北側の広縁と湘南亭は「来客用空間」として、南側の次の間、板の間は「家人用」として、それぞれの機能により明確に空間を分け、控の間が各用途別空間を繋ぐ役割を果たす配置としている。 湘南亭が社交場あるいは迎賓館として機能したであろう根拠は、主に裏方の家人用空間ある。寛永年間に始まったとされる京の仕出し料理を湘南亭の主も、この席で茶懐石として来客に振る舞ったと思われる。もし懐石料理を手前で調理するなら板の間部分は傘亭のように調理室として土間に竃を計画していたであろう。この席はあくまで「仕出し料理」を前提にしている。 各料理店の仕出料理を受け取ったのは「板の間」である、そこには受付として上り口脇に受付を設け、板の間には会席料理を入れた岡持ちを並べたことだろう、それは一料理店であったのか、茶会によっては京の中でも厳選した複数の料亭料理のみならず各地の海の幸、山の幸あるいは名産品、特産品が所狭しと並べられたのかもしれない。 「次の間」は仕出し料理を配膳する部屋であったと考えられる。南側に45cmほど張出し、竹を詰打ちした棚は食器棚と使用され長四畳の間取りの北側に器を並べ、料理を配膳するには、とても塩梅が良かったと思われる。料亭にも銘品の器があったでろうが、そこは茶匠の持物とは一味違い茶匠は、もてなす客や茶会の意味、季節によって器を吟味し現代では文化財に指定されるほどの器に料理を盛ったに違いない。 「控の間」にある大炉は計画当初より小さな炭火をいくつか並べ汁物や椀物、箸洗いなどの料理に加え湯桶を温める目的で設けた炉である、また脇の水屋は懐石で使われた多くの食器を洗うため多くの水を必要としたのであろう、水屋前には水を給する開口部が開けられている。 このように湘南亭は西方寺の林泉、懐石料理を楽しむ茶室として、誠に立地条件も抜群で建物の機能や動線も考えられた優れた建物であると共に、当時としては数寄で充実した席に招かれた客は公家や大名、高僧に違いなく、このような席を取仕切る事ができたのは、やはり茶匠、利休の二代目であった小庵だったのではなかろうか。 |
