| 好み:織田有楽(1547~1621) | |
| 創建:元和4年頃(1618) | |京都建仁寺塔頭正伝院 |
| 移築:明治45年(1912) | |東京麻布今井町|三井家本邸内 |
| 移築:昭和12年(1937) | |神奈川県大磯町|別邸城南荘 |
| 移築:昭和45年(1970) | |愛知県犬山市|有楽苑 |

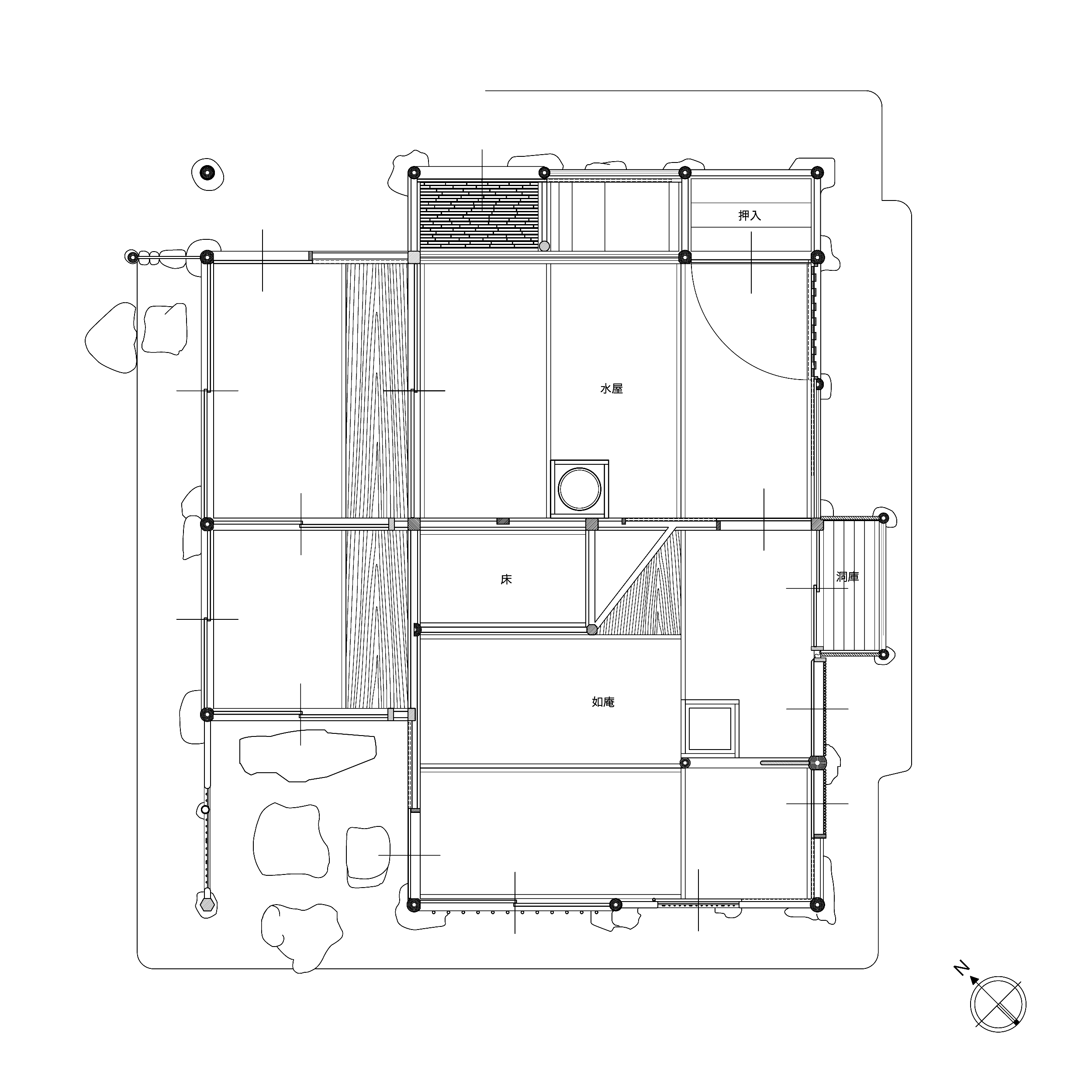
如庵 平面図
| 織田有楽斎の茶の湯は「客をもてなすをもって本義となす」と伝わり、武家の茶として格調高さを備え簡素であることを旨とすると評される。有楽晩年の作「如庵」は正に、この茶風が表現された秀逸の茶室であり書院と共に幾多の移築を重ね昭和11年(1936)重要文化財、昭和26年(1951)には改めて国宝に指定され現代まで手厚く保存されてきた。 |
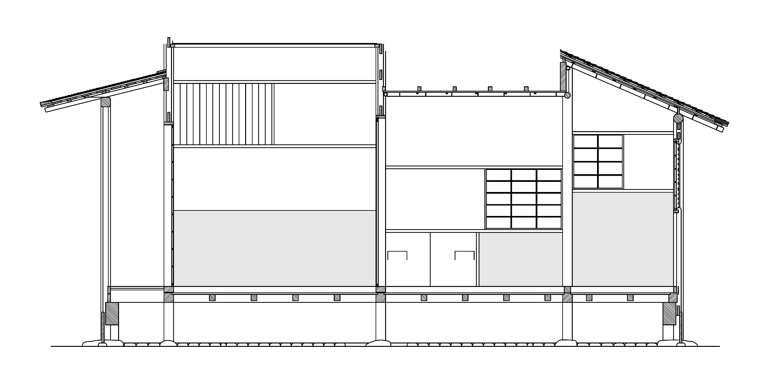
立面図

東立面図

南立面図

西立面図

北立面図
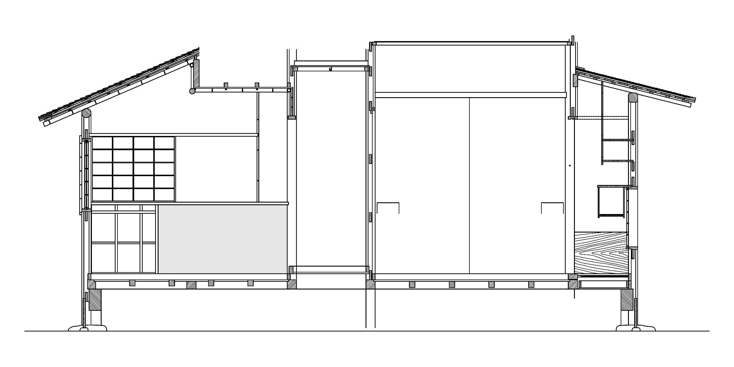
展開図

鞘の間・水屋 北面

鞘の間・如庵 北面

如庵 北面

水屋・如庵 東面

鞘の間・土間 東面

如庵 南面

水屋・鞘の間 南面

土間・鞘の間 西面

如庵・水屋 西面
「もてなし」の茶室
| 幾多ある茶席の中での大看板「如庵」は建築界でも注目を集め、これまで重鎮各位が解説を行っており、その著書の中にも多く記載されている。しかし織田有楽が極めた奥義「客をもてなす」を心に留め如庵の平面図を読み解くと、また異なった情景が生まれ、まさにこの席は「もてなしの茶室」であることが伺える。 織田有楽が「もてなしの心」を表現しようとした、と思われる工夫を書き出す。 |
| ・床脇の三角地板 ・中柱と風炉先の構え ・入込みの土間 ・鞘の間二室(鞘の間と扈従ノ間) ・竹を詰打した有楽窓 ・古暦の腰張り |

床脇の三角地板
| 江戸時代に「筋違の囲」とも呼ばれるほど広く名が知られていた床脇の三角地板。 躙口から入席すると左手に床間があり右手には荒々しく削り緊張感のある床柱が建ち袖壁で仕切られ、脇の茶道口との間に入隅部分が生まれる、この部分は躙口から見ると死角となり人一人、潜むには十分な空間が生まれるのだ。 この席が創建されたとされる元和4年は大阪夏の陣の3年後であり、まだまだ戦に明け暮れた時代の記憶も鮮明な頃である、武士であった織田有楽は茶席に死角部分があると客人に不安や不信感を与えると気遣った、あるいは良からぬ猜疑心を客人に与えると憂慮したのではないか。すでに隠居の身で茶の湯に生きる有楽は自身の邪心無き潔白な心を表現しようと、全く何にも使えないデッドスペースが生じても、この斜行する壁を作り有楽の清廉潔白を証明する重要な壁として計画したものであろう。 |

中柱と風炉先の構え
| 織田有楽のクリスチャンネーム「joan」から名付けられたとも伝わる如庵の点前座は、向切の炉先に中柱が立ち、正面には火燈型に刳り抜かれた杉の一枚板が入り、その先には半畳分の空間があるのだが、この空間の意味が不明である。一般的には席の空間に余裕を生み出す効果があるとの意見である。 しかし風炉先正面に入る火燈型に刳り抜かれた一枚板には深い意味があるのではないだろうか。例えば何か大切なものをここに置き、亭主が思いを寄せ茶を点てたのではないか、敬愛する兄共に戦った友、あるいは崇拝するキリストやマリア像であったのかもしれない。現世に生きる者たちだけではなく過去に生きた者たちへも感謝を込めて「もてなす」ことも有楽の茶の湯では重要なひと時であったであろう。そう思ってこの半円ではない美しく微妙な曲線を描く火燈口は光背に見えてこないだろうか。 |

入込みの土間
| 如庵の躙口には屋根が設けられており、季節や天候に左右されることはなく、雨天時にでも濡れることはない。特にこの席には大僧正を始めとする位の高い僧侶が訪れたことであろう、すれば法衣もそれなりの衣であり雨天時には気を使っただろうが、濡れる心配がないことは茶席が始まる前の大切なもてなしの心の表れであろう。屋根付きの躙口としては庭玉軒も挙げられるが板塀で囲われ潜戸から入る同席とは人間の行動としては大きく異る。 |

鞘の間二室
| 土間横の台目畳が入る小間は江戸時代中期に書かれた茶道書「貞要集」には「扈従ノ間」と記載されている。この小間と土間の境は、いくつかの茶会記あるいは絵図によると「明放シ」として建具を記していない図や「シゲサン戸二枚」としたもの、あるいは「杉戸」と記載された絵図もあり、その時その時に応じて臨機応変に入れ替えて使用したり、置き敷居としていることは両建具を取外し一室として使用したこともあったことだろう。 また武士の茶会が開催される時には、この小間に置き刀掛けが置かれ、僧侶を招く時には衣桁が置かれたとされることから、この小間は現代でいえばホテルのフロント的な機能を果たしていた。 さらに両建具が入る開口部脇の小さな袖壁は、建具を壁に立掛けた時、納まり良く、見た目を良くするため設けた、現在残る「杉の一枚板戸」に関しても現在入る場所専用の建具ではなく、土間の間に入れ雨戸としての役割も果たし、鞘の間二間の境に入れたときには区画を表現した、現代では同じ種類の建具を入れ「Stuff Only」と張紙を出すところ茶人の有楽斎は、そんな無粋なことはしない。建具の種類で空間の区分けをしたと思われる。 |

竹を詰打した「有楽窓」
| 点前座脇、東面の2つの窓には外側に竹を詰打ちしてあり古くには「メクラ窓」と呼ばれることもあったようだが現代では「有楽窓」と称され、風炉先の窓には紫竹が32本、点前座脇の窓には45本打ち付けてある。 この有楽窓の効果は通風を確保しながら採光の調整という一面の他、視覚の調整というブラインド効果も期待できる、どちらかといえば有楽は外部から客人の顔が見えないようにするためのブラインド効果を期待したのではないだろうか。それは客人へ対する配慮であったのかもしれない。 |

古暦の腰張り
| 「暦張りの席」とも呼ばれる古暦を用いた腰張りは、この席の特徴を表しているが、この暦は有楽歿後のもので寛永、万治、貞享、延宝、元禄などの年号の古暦で創建当初より張ってあるものではないようだが、この席の客人は武士か僧侶であり前後左右に広がる格式が高い衣装が多く創建当初より客人の衣を守るため腰高の紙を張られていたことに間違いないが創建当時の紙の種類は定かではない。 慶安四年(1652)頃 如庵は有楽隠居所とともに正伝院に寄進されたが当時、正伝院も有力な檀那を失い延宝より天和、貞享(1673~1688)の頃には、かなり荒廃していたようであり有楽の祠堂とも言える如庵の修理も経済的な余裕がなく、不本意ながら古暦が張られたのではなかろうか、もし創建当初から古暦が張られていたとすれば、他に類を見ない仕上げは当時の茶会記に必ず記載されたに違いない。 現在、古暦が張ってあるがため草庵風茶室としての印象が強く、多くの解説文でもこの意見が主流である。しかしもし仮に、この腰張りが創建当初、古暦ではなく武家の茶室とも言える書院茶室に多く使用された奉書紙であれば如庵室内の景色は一変し、竹材を多用していたとしても武家茶室として格調高く気品あふれる茶室となるだろう。 |
