Shunsouro
| 春草廬|しゅんそうろ(重要文化財) 好み:織田有楽 創建:江戸時代初期(1615-1660) 様式:草庵式 所在:神奈川県横浜市中区本牧三之谷58−1「三渓園」内 |
春草廬と月華殿
| 現在。春草廬が建つ三渓園は明治時代末から製糸・生糸貿易で財を成した横浜の実業家、原三渓が造りあげた日本庭園、園内には17棟の歴史的建造物が移築され、そのうち10棟は国の重要文化財に指定され春草廬はその中の一棟である。 春草廬は。もと京都宇治に建ち西国三十三所の十番札所である三室戸寺の金蔵院客殿にあり「九窓亭」と呼ばれおり客殿の15畳の間に接して建っていたと伝わり同寺に残る天保15(1844) 年の古図には「カコイ」として描かれている茶室だと伝わっている。 原三渓は、この客殿ともども三室戸寺より譲り受け移築の際に座敷と茶室を切り離し別々の建物とし、月華殿は十五畳と十二畳半の座敷を中心に四方を縁で囲み、さらに北側に付属室を加え月華殿、茶室には広間茶室と水屋を増築して春草廬と命名したようだ。 京都宇治にあった金蔵院客殿は伝えによると、もとは伏見城内にあった建物で諸大名伺侯の際の控室に当てられていたと伝わり元和6(1620)年、伏見城取り壊しの際、宇治の茶商上林三入に与えられ後年、金蔵院に寄付されたとされる。 また九窓亭も有楽好みであるとされているが、それを証する十分な文書等は少し欠けており現在のところ証となる古文書や絵図が発見されることを待っている。しかし誰の作であろうとこの茶室がもつ魅力は素晴らしく、貴重な文化遺産であることは間違いない。 |

金蔵院客殿想像図
天保15年金蔵院客殿古図を参考(上北)
春草廬
| 三渓園では茶席2席と水屋からなる建物全体を春草廬と名付け、両席は小間茶室と広間茶室と称しているようだが三畳台目の小間茶室は「九窓亭」と呼ばれ、もともと京都宇治に建つ三室戸寺金蔵院の客殿の一室であった。席は1918〜1922年の間に三渓園へ移築されたもので移築の際、この三畳台目席に新しく広間茶室と水屋等を加えて「春草廬」と名付けられた。 名称に関しては少々ややこしい建物である。 古くから受け継がれてきた席名の「九窓亭」を使用しておれば、もっとスッキリしていたであろうに・・・。まあ確かに「九窓亭」の呼びは「くそうてい」あるいは「きゅうそうてい」と呼ぶ違いはあれど、あまり響きが良くないし、日本では「九」の数字は「苦」を連想させる不吉な数字として避けられてきた文化もあるので当時、海運というリスクが高い生業で財を成した原三渓には「九」という数字に抵抗があった数字だったのかもしれないが、現代ではそんなに気にすることもなく正式に「九窓亭」を復活させ、呼び名を「ここまどてい」あるいは「九」の字は「丸」の一つ手前の漢字であることから「まるまえのてい」などと呼んでほしいものだ。 |
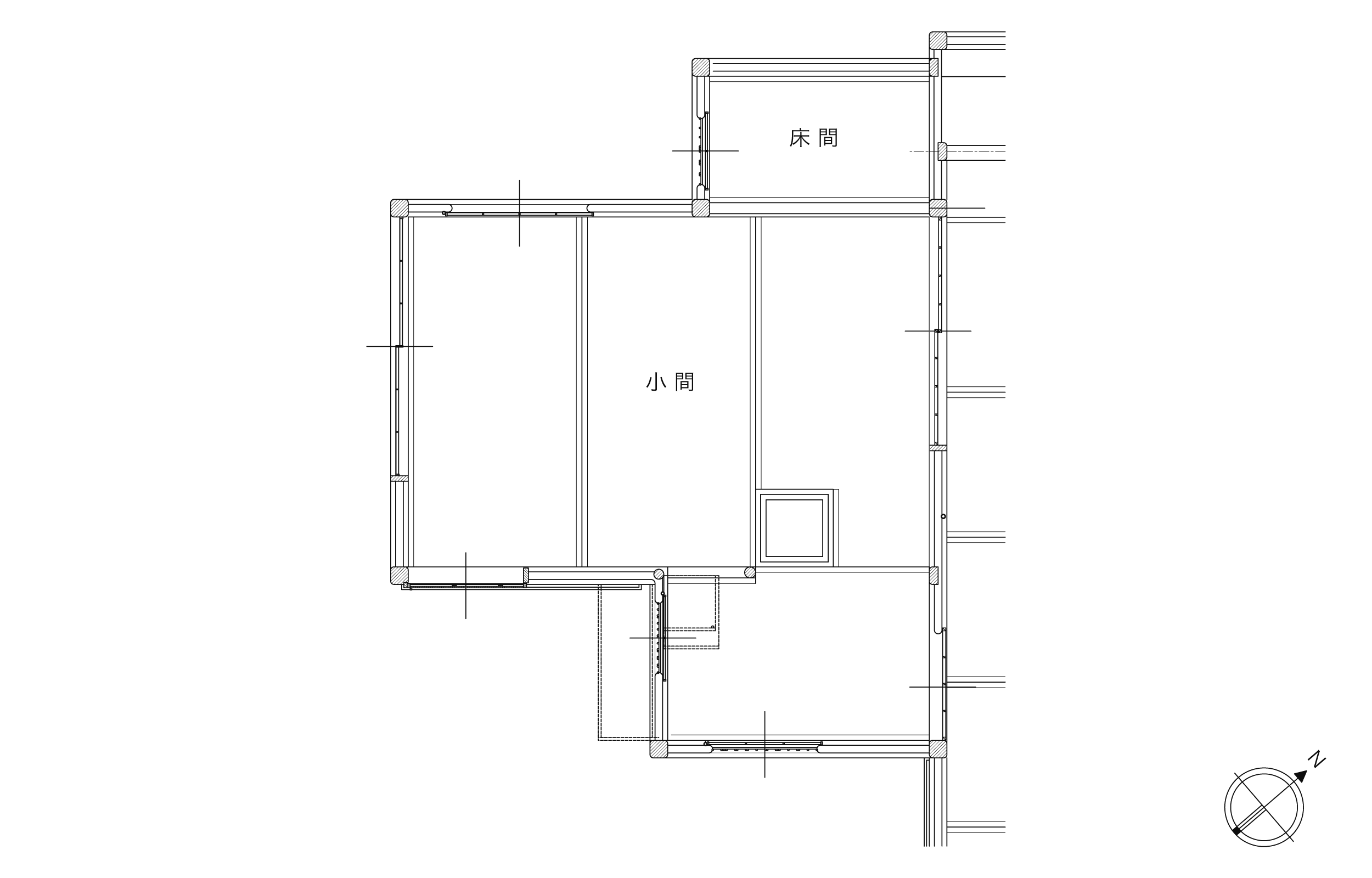
平面図

春草廬(旧九窓亭)
平面図

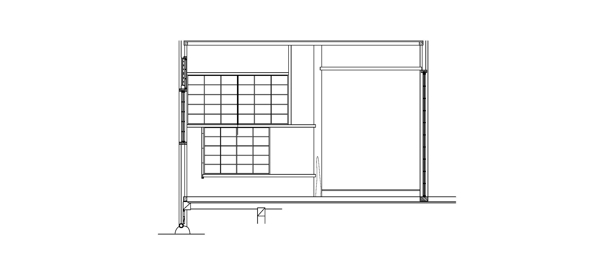
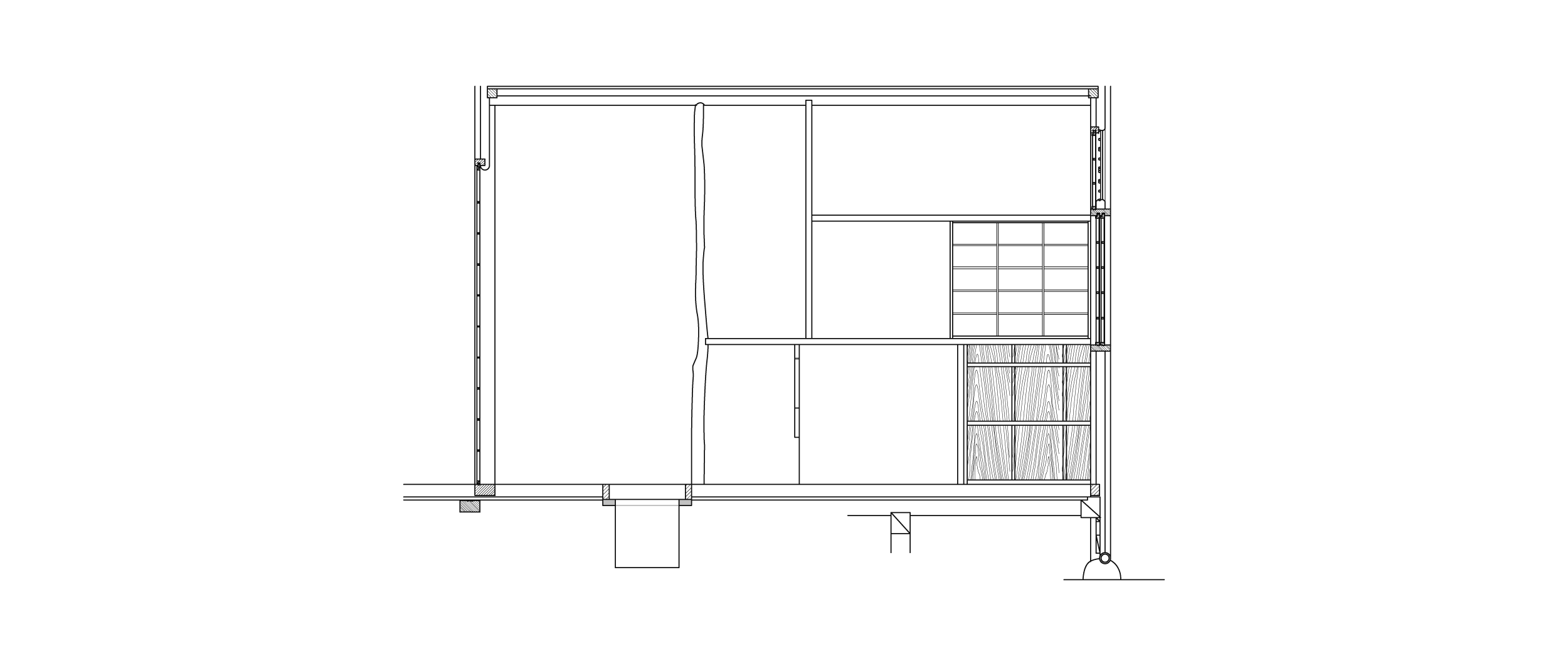
展開図
北 面

東 面

南 面 1

南 面 2

西 面 1

西 面 2

広 間
平面図

展開図
北 面

東 面

南 面 1

南 面 2

西 面

水 屋 西 面

