孤篷庵「平面図」

孤篷庵「直入軒」
遠州が創建した書院「直入軒(じきにゅうけん)」には「縄枢(じょうすう)」と称する3畳敷の茶室を造ったが、寛政5年(1793)11月の火災で孤篷庵とともに消失した。再建時、忘筌は創建時と変わらず原型を殆ど忠実に再建されたのと異なり、直入軒は近衛家から寄進された建物をあまり変更することなく再建されたようで、結果的に直入軒は創建時とは大きく変わった姿で寛政12年(1800)5月23日に上棟し再興したと思われ現在に至る。
山雲床
| 山雲床 sanunjo|重要文化財 所在:京都市北区紫野大徳寺・孤篷庵山内 時代:寛政11年|1799 様式:書院式 好み:小堀遠州(1579~1647) |
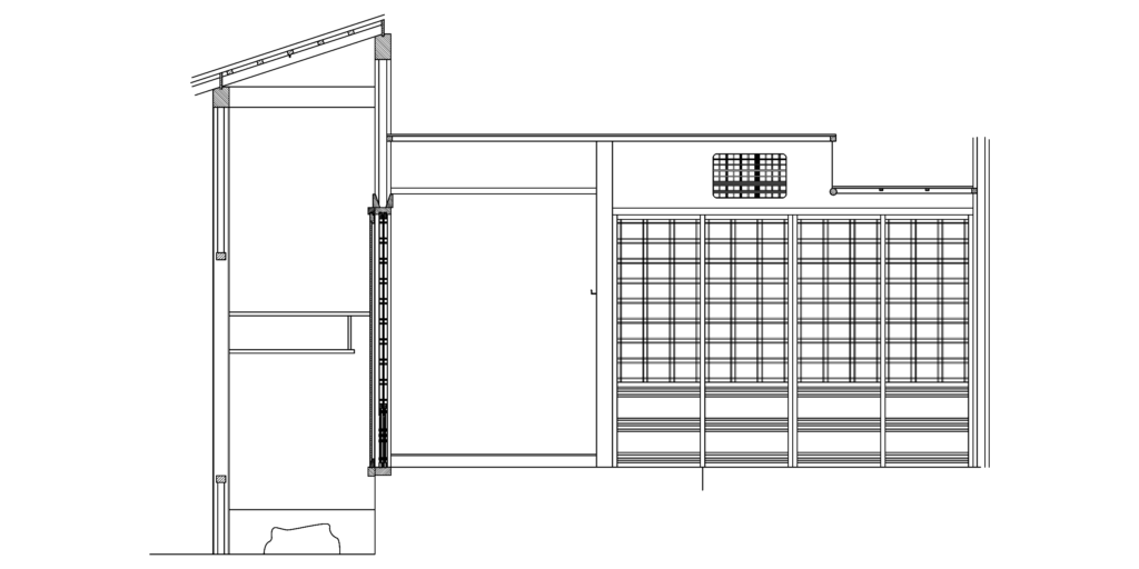
| 再建時の図からは何度かの計画修正を経て、現状に落ち着いた様子が窺え経済的あるいは小堀遠州の意向、敷地面積などの諸問題が山積していたと推測できる。 ここで注目されるのは、直入軒の座敷の長押が床間も室内一線に廻され、現在の忘筌と同じ構えを見せていた様子が記載されていたが、現存する山雲床の茶室は遠州が創建した直入軒には存在せず消失後の再建時に、遠州を代表する席の一つである密庵席の写しが選ばれたようである。 密庵席の写しである山雲床は、その時代から書院に接続された後の現在の席と同じ構成に基づき写されたと考えられ、密庵席とは異なる手法が用いられている。 |
山雲床 平面図

| 密庵席と大きく異なる意匠は次の通り。 ・密庵床と呼ばれる書院をなくし壁としている。 ・床間前、西側の違い棚はなく壁としている。 ・入り口の板縁はなく踏石から直に入席する。 ・床間西側下部に皮付葭を用いた墨跡窓を開け内部に障子をいれる。 ・北側4枚引違い腰付き障子上部、欄間部分に寒竹を用いた下地窓をあけ、外部に障子を掛ける。 ・風炉先、違い棚上部に寒竹を用いた下地窓をあけ、外部に障子を掛ける。 ・腰高障子の腰高を6寸低くし木地で仕上げている。 ・点前座上の子壁入隅部分を壁の塗り廻しとしている。 |
| これらの意匠の変更は書院風の格調高い密庵席より、やや草庵風の意匠を強くしており当時の時代的趣向を取り入れ、遠州が最も求めた茶の湯の普及を意識し計画されたのか、あるいは直入軒の再興に尽力した人物の趣向を取り入れたのか定かではないが、書院と草庵が融合した席として受け継がれている。 |
展開図
北 面

東 面

点前座 北南面

南 面

西 面

直入軒
息子への無念な思いを込めた直入軒
直入軒 平面図

寛永消失前孤篷庵書院図写し ※参考:孤篷庵古図
孤篷庵西側に位置する「直入軒」は小堀遠州が66歳の時、寛永21年(1644)8月7日に自身より先に逝去した長男喜太夫の為に建立したとされる。小堀遠州(作助)が藤堂高虎の養女と結婚したのは慶長2年(1597)と伝わり妻帯者となり47年後のことである。
その頃小堀遠州は江戸勤めで帰京したのは正保2年(1645)4月24日、喜太夫の死後8ヶ月後となることから先の建立の意味は着工した、あるいは計画を開始した、という位の意味であろうとする一方で、既にこの書院は計画されており完成間際に「直入軒」と銘じ一部の修正を施して完成させたとも考えられている。ちなみに「直入」は「修行を超越して如来の境地に至る」と言う意味の「一超直入如来地」からとられた喜太夫の法名「直入」から名付けられたとされる。
だが遠州が創建した書院「直入軒」に造った茶室「縄枢」は南向きの点前座があり床間は東向きに配置されている、直入の名は自身より先に命を落とした息子に対し親として、どれほど悔やまれることであったろうか、どのような形であったとしても生きていてほしかったであろう。小堀遠州は息子の死を受け入れることが出来ず息子は入定したと理解し「自分より早く入定した」との意から「直入」という言葉を選んだと、私は考えたい。
そして日が昇る東向きの床間には再生を願い、南向きである朱雀の方向の点前座には長生を願い、息子が再び生まれていたなら必ずや長生きしてほしいと父親としての願いを込めた席であったのではないだろうか。
