| 密庵席:Mittan no Seki 好 み:小堀遠州(1579〜1647) 創 建:寛永18年(1641)以前 間取り:四畳半台目 様 式:書院風 所 在:京都府京都市北区紫野大徳寺町 |
小堀遠州
| 小堀遠州は天正16年10才の折、利休に出会い茶の湯に目覚め15才で古田織部の弟子となり江戸初期には大名茶人、芸術家として独自の茶の湯の世界をひらき「わび、さび」の精神に美しさ、明るさ、豊かさを加え客観性の美、調和の美を創り上げる「綺麗さび」を真髄とする遠州流の流祖である。 |
| 小堀遠州の師、古田織部は茶室(数寄屋)と書院の中間の座敷として鎖の間(くさりのま)を創造した。遠州の茶会記には茶室で濃茶を振舞った後、鎖の間にて薄茶を点て、もてなしたり書院や庭園内の茶屋など場所を変えて振舞う茶事を盛んに行っていたようである。 |
| 織部の茶の湯では茶室、鎖の間、書院という構成では茶室の内まで座敷飾りが入り込むことは無かったが、遠州は茶の湯と座敷飾りの一体化させる茶室を追求した。その一つが大徳寺塔頭、龍光院の密庵席である。 |
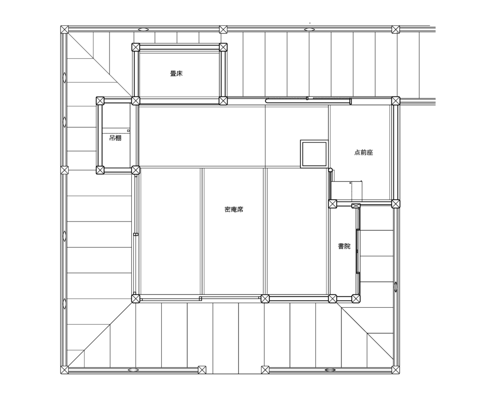
平面図

密庵席 平面図
| 寛永5年(1628)9月11日に小堀遠州の京都三条屋敷で催された茶会記には密庵席と、ごく近い四畳半台目席であったようだ。あきらかに密庵席として茶会記に記載された寛永18年(1641)松尾久重の会記によると密庵席は独立しており席は板敷きの縁に囲まれて建っており後に書院の建物と接続され現在の姿となった様子。 その痕跡は密庵席と南側書院境の両側柱が既存の柱、軒の手法、床の構造からも見て取れるようだ。密庵床と呼ばれる付書院は張付け壁両側の柱には、板床上端から三尺二寸の位置に中敷居の跡と思われる埋木があり、ここが窓であった可能性も残されている。 |

密庵席 初期平面図
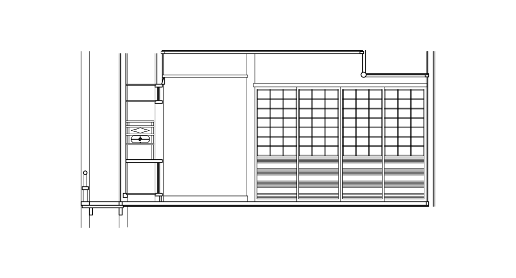
展開図

北面 展開図

北面 初期展開図
北面4枚の腰障子の開口部も、もとは床柱脇に火燈の給仕口があり点前座には方立てを立てた茶道口が開いていた痕跡が今でも柱に残っており、給仕口には床柱には三尺七寸九分のか高さに厚み一寸一分、幅一寸一分五厘の埋木があり茶道口があったと思われる柱には高さ五尺二寸一分の高さに柱幅と同寸の埋木が施されている。

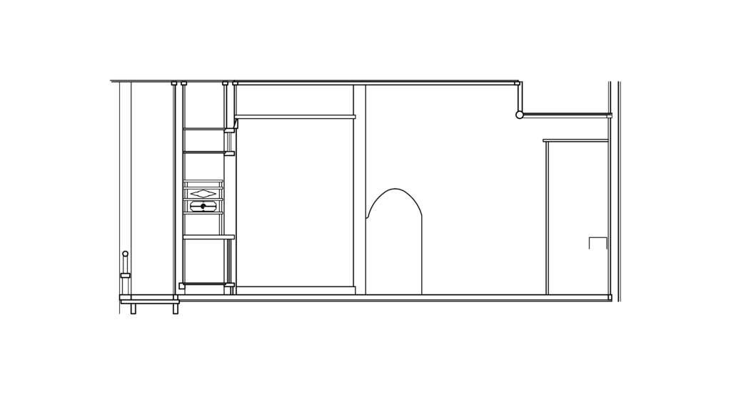
東面 展開図

東面 初期推測展開図
密庵席の柱には面皮柱と角柱が使われ、長押が付き釘隠しも打たれており、開口部には腰高障子を入れ、壁は張付壁仕上げとなっている。さらに違棚と書院床(密庵床)が設けられ、基本は書院である。しかし、こういう書院造りの四畳半に台目構えの点前座を設け全体に調子よく釿目(ちょうな)を施した杉丸太に中杢の杉板をはめ、ほぼ障子の腰高と同じ高さの横木下を吹き抜き点前座側には織部の雲雀棚(ひばりたな)を釣り、この炉廻りだけを草案茶室の趣を感じさせながらも席全体は見事に調和した空間と創出しているのだが・・・>>>

南面 展開図

南面 初期展開図
創建当時、密庵席南側は板縁に面しており、境には西寄りに間口1間の引違い障子が入っていたと考えられている。障子のデザインは多分、現在の西面に入っている腰高障子と同じであったであろう更に言えば、もしかすると現在、北側に使用している腰高障子のうち2枚は創建当時のものを再使用し、2枚は書院と接続する時に新設されたのではないだろうか。

西面 展開図
違い棚には遠州好みの図案を施した幕板が上下に2箇所。上には、やや丸みを付けた松皮菱、下には木瓜(もつこう)形の輪郭に七宝繋(しっぽうつなぎ)の浮彫が施される。(北面展開図参照)
やはり密庵床は書院だった!?
現在、明らかに書院造りの四畳半茶室として強く印象づけているのは、北面の4枚建て腰高障子ではなかろうか。初期の密庵席では草案風の太鼓張襖であったであろう茶道口と、火燈型の給仕口であれば席の雰囲気は大きく異なっていたと感じる。
遠州は北東側が草案風で南西側を書院風として対角線上に異なる様式で構成し、その極端な様式の違いを床と書院が紡ぐ空間構成を考えた。
つなぎ役の北面床間には下部30cm程を四角にした丸太の床柱に張付け壁を組み合わせ、大きな面皮の相手柱に長押が飛付き違い棚を構成している。さらに対角線上の書院は少々厚めの落掛が付く端正な角柱を挟んで点前座側には丸太を四角にした落掛を施す等、詳細な部分にても様式の融合をはかる意図を感じる。
床柱や落掛にしても、こんなに都合の良い太さの丸太を手に入れるも、そんなに簡単ではなく余程、材料を吟味したことがうかがえる。
現在、密庵禅師の墨跡が掛かり席名となったと伝わる通称「密庵床」と呼ばれる書院床が正面とも思われるが席の正面は、あくまでも北面の床間である。それは天井の竿方向が床間と平行に施されていることで証明される。
床間幅は禅師の墨跡を掛けるには幅が狭いようで、もし計画当初より禅師の墨跡を掛ける予定であれば、墨跡の寸法に合わせ床間の幅をもう少し広げていたに違いなく、密庵禅師の墨跡を席に掛けたのは創建時ではなく年月を経た後ではないだろうか。
密庵床の奥壁に描かれた張付絵と床板下の腰壁に描かれた張付絵に違和感を感じるには私だけだろか。手前下の山水画より上部奥壁の山水画の方を大きく描くなんてことがあるだろうか。通常、張付絵は室内全体で統一感が取れていなければならない、下部が近景で上部が遠景であるべきところだが下部の絵はまるで遠景を描いているように見える。

参照:『国宝並びに重要文化財竜光院書院・本堂・盤桓廊・兜門修理工事報告書』,京都府教育委員会,1967. 国立国会図書館デジタルコレクション
この密庵床壁面の張付画は当初この壁に書かれたものではなく、この場所に壁はなく後に絵が移設されたのではないだろうか、最も考えられるのは書院接続時に北面の壁面から移設されたことである。
ここで一つの問題は張付画の寸法である。当初、北面の壁には方立てが立つ茶道口と火燈口の給仕口が開けられていたとされる、そしてこれらの両出入口の幅は、ほぼ密庵床の幅と同じであるか、やや広いようであったと思われる。
そこで現在、密庵床の奥壁に張られている張付画を当初の位置と思われる点前座左側に配置してみた、なかなか鮮明な写真はなく国立国会図書館デジタルコレクション「国宝並びに重要文化財竜光院書院・本堂・盤桓廊・兜門修理工事報告書」掲載の写真を使用させていただくこととした。

画像は不鮮明で判りにくいと思うが張付画を入替えると水平線の位置が一致するように思え、さらには張付画の画面構成として、なかなかしっくりと一貫性が生まれるように思えてならない。
