Fushimiinari Taisha “Ochaya”
| 伏見稲荷大社 お茶屋:Fushimiinari_Taisha_Ochaya (重要文化財) 好み:御水尾天皇(1596〜1680) 創建:江戸時代初期(1615-1660) 様式:書院式 所在:京都市伏見区深草薮之内町68番地 |
| 伏見稲荷大社は全国に3万社あるといわれる稲荷神社の総本宮。 伏見稲荷大社楼門の南側に位置する「お茶屋」は寛永18年(1641)禁中非蔵人(天皇の側近である蔵人を補佐・代行する実務職員、現代では宮内庁事務官あたり)として出仕していた羽倉延次が後水尾院より拝領した建物で創建は17世紀はじめと考えられている。 |
| 当社の伝えによれば、羽倉延次は慶長11(1606)年、後陽成天皇より非蔵人として取り立てられ次の後水尾天皇が寛永6(1629)年に退位した後にも朝廷に出仕していたようで、このように長い関係により寛永18年頃、宮中の古御殿「御茶屋」を拝領したとされている。御茶屋は明治22年まで、現在の楼門の南西の羽倉邸内に伝えられてきたが荒廃が著しく、大社の禰宜(ねぎ:宮司の補佐役)であった竹良豊が建物の保存を図り、羽倉家より譲り受けて現地(旧祠官松本邸)に移建した。しかし良豊没後には大阪の実業家木田氏に敷地とも売却された後、再び大正6年7月には福田氏に転売された。その後さらに転売の話が持ち上がり遂に当社が大正15年7月購入し現在に至っている。 |
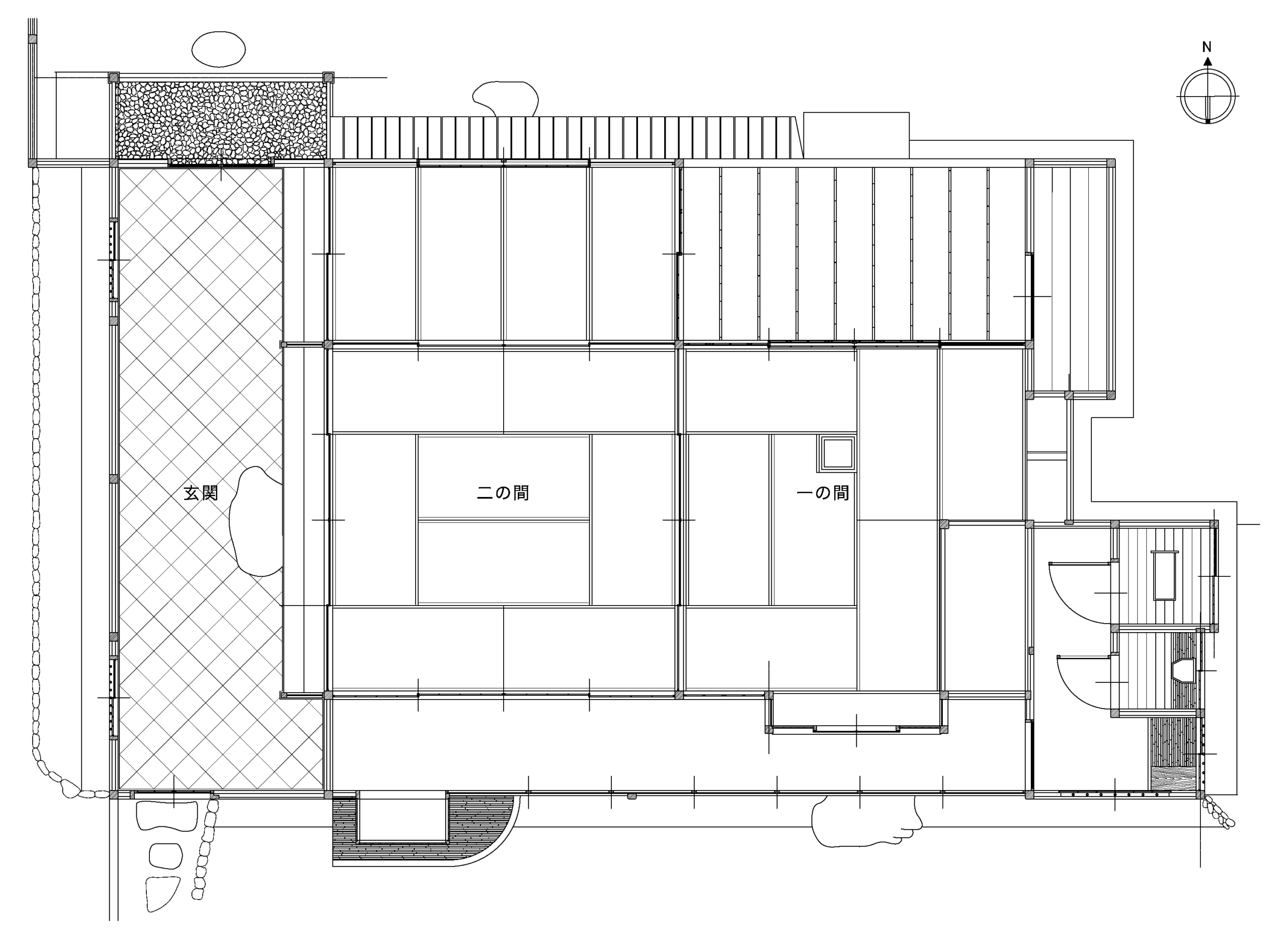
| 現在の御茶屋西側に車寄、玄関が設けられ東側には便所及び押入が附属されている。また北東方向に備わる押入れなども、この建物には相応しいとは思えない。 天明および明治初年の古図には、これらに類似した部屋はなく明治の移建時に車寄、玄関を附設し大正七、八年頃に便所、押入を増設した様子で、大正初年頃の写真には玄関、車寄が残っており、画像からは部材は若干古く、且つ根継を施されており、明治移建時の新築とは考えられず、当時邸内にあった古建物を附属したと考えられる。 創建当時、公家が営んだ山荘や茶屋は座敷をあまり列に並べず周囲に縁を設け、できるだけ開放的な座敷にする傾向が見られ、近世に増築されたと思われる各室を除くと創建当時の茶屋の趣が見て取れる。 |
| 茶席「一の間」は八畳間の東面中央北寄に違棚を設け北脇には面皮柱を立てている、手前の一畳は点前座で南側の風炉先には下部を大きく吹き抜けた一畳の床間がある、床柱には丸太を用い床框は黒塗り面取りを施した角材が使用され、この辺りの素材の組合せが書院造りが数寄屋造り化していく特徴の一つと言えるだろう。 違棚脇、床柱に加え点前座と考えられる一畳上の落天井壁留、付書院の左側の柱に面皮柱など要所に丸太が使われ書院風茶席にも和らいだ意匠を生み出している。 また床間脇の一畳が点前座とするなら現在、切ってある炉畳の位置には少々疑問があり、炉は創建当時にはなかったのか、あるいは点前座脇に切られており今の位置が創建当時の位置であったとは考えにくい。 |
平面図

展開図
北 面

「一の間」東 面

南 面

「一の間」西 面

建築的アナリーゼ
| 銘茶席がよく経験するように御茶屋の主が度々変わりつつも現代まで受け継がれてきた銘席である。 現在の平面図を見ると宮中座敷を賜った茶屋としては玄関や便所、押入が設けられれていることに違和感を感じるのは筆者だけではないだろう。この違和感を感じる各部屋は補修工事や文献により創建当初にはなかったようで。明治期や大正期に歴史的価値や風情より近代国家の建築物として機能性や使い勝手を優先して増築あるいは機能変更されたようである。ただ現代に生きる者としては創建当時の趣を優先し、歴史的に忠実な建物として保存してほしかったと悔やまれる。 近世の増築や改修時、日照や風通しが良好で建物の一等地である東南角地であり床間の裏側に当たる位置に、ご不浄とされる水廻りを配置したのだろうか、もし大学のプランニングの課題で、このような計画を提出したなら、間違いなく落第点である。大学の理想を追求する授業とは異なり実社会では様々な制約が発生することも事実であり、この場所に水周りを配置した理由としては、敷地上の制限、建物からの景色、経済的な理由あるいは今よりずっと家相や風水が巾を利かせていた時代であり、さらに神仏の敷地に建つ建物であれば鬼門を外した位置を選んだとも考えられるのだが、そうであればせめて南側の縁を延長した位置に渡廊下を設け別棟で増築するとか、あるいは玄関の西側、鬼門を外した位置に厠を設置すれば創建当時の一の間の趣は最大限に残せたのではないだろうか。 確かに後世の小生などが、当時の状況を知ることもなく勝手な意見を述べてはいけないのだろう、また玄関や便所、押入を増設することにより、この建物はより多くの人に使い勝手の良い茶屋になったのかもしれないが、多少使い勝手が悪くとも当初の設計者の意図を尊重することも歴史的建築物を保存することには必要であったであろうと思うと残念である。 この建物には意外な趣がみられる。 通常、何も考えることなく、ただ惰性で4枚引きの建具は同じ趣向やデザイン、素材の建具を入れるが、ここでは木板製の板戸、舞良戸と和紙を張った障子戸を組合せた建具を同じ開口部に入れている。一の間と広縁の堺に入る建具は舞良戸枚と2枚の障子戸が入る。4枚の竪舞良戸は屋外側に真中に一本、その両脇には吹寄せにした2対の縦桟を入れ室内側は和紙を張り墨絵が描かれ張壁のように見せ空間を和らげているが、二の間の玄関との境には中程に2枚の障子戸と両脇に鏡戸を入れ、どことなく緊張感をもたらせる空間となっている。 建具は部屋の印象を大きく決定付ける素材で重要な要素であるから、現代でも建築家の中には建具のデザインに神経質な者も多い、この異種類の建具を組み合わせることで単調になりやすい空間に緊張感や調和性など様々な空間を演出できることに改めて気付かされる。 |
